Architekturbüro
Diese Webseite verwendet Cookies. Durch die Nutzung der Webseite stimmen Sie der Verwendung von Cookies zu.

Wohnanlagen / Geschäftshäuser

4 Familien Wohnhaus in Markelfingen

4 Familien Wohnhaus in Markelfingen
4 Familien Wohnhaus in Markelfingen
4 Familien Wohnhaus in Markelfingen
 

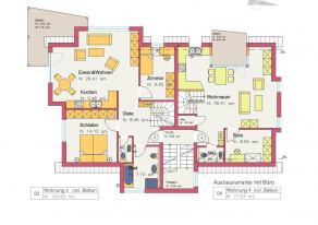
Pläne und Ansichten

Grundriss EG
Grundriss Dachgeschoss
Grundriss Obergeschoss
Grundriss Galerie
 
 
 

Dieter Heller - Dipl. Ing. (FH) Freier Architekt   |   Breitestraße 21  |  78234 Engen  |  Telefon: 07733 5408