Architekturbüro
Diese Webseite verwendet Cookies. Durch die Nutzung der Webseite stimmen Sie der Verwendung von Cookies zu.

Wohnanlagen / Geschäftshäuser

Attraktiv Wohnen

6 Familien Wohnhaus in Allensbach
6 Familien Wohnhaus in Allensbach
 

Wohnanlage in Allensbach

In zentraler Lage im Ortskern von Allensbach, unterhalb des Höhrenbergs, entstand eine familienfreundliche Wohnanlage mit einem Mehrfamilien Wohnhaus und 2 Doppelhäusern. Im Rückwärtigen Bereich des Grundstücks entstand ein Wohnhaus mit sechs unterschiedlich großen Wohnungen. Im Kellergeschoss ist eine zentrale Tiefgarage mit großzügig erreichbaren Stellplätzen  und Sonderflächen für Fahrräder, Kinderwagen und dergleichen. Die Wohnungen sind sinnvoll und Kundenorientiert organisiert. Lichtdurchflutete Räume durch großzügige Fensterflächen.

6 Familien Wohnhaus in Allensbach
6 Familien Wohnhaus in Allensbach
6 Familien Wohnhaus in Allensbach
 

Pläne und Ansichten

Großzügige Fensterflächen zur Sonne hin bringen das Licht in die Wohnräume. Großzügige Balkone laden zum Verweilen und Erholen ein. Nette Glaserker fangen die Morgen und Abendsonne ein und leiten sie in die Räume. Feingliedrig gestaltete Gebäudestruktur und durchdachte Fassadendetails fangen die Blicke ein und geben dem Gebäude das gewisse Etwas.
Hochwertige Materialien in Bauqualität und Ausführung heben sich besonders hervor.

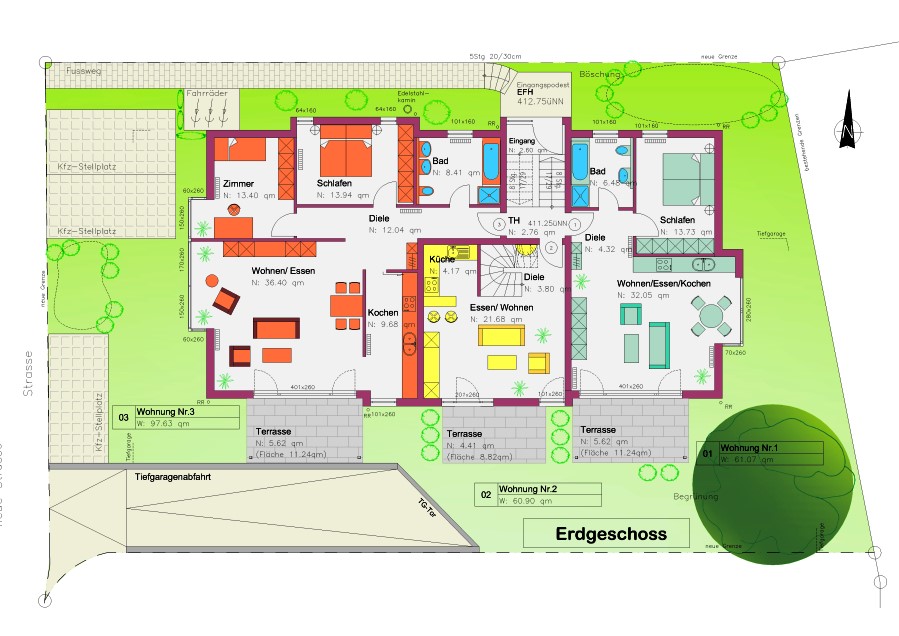
Grundriss Erdgeschoss
Grundriss Obergeschoss
 
Grundriss Galerie
Grundriss Dachgeschoss
 
 
 

Dieter Heller - Dipl. Ing. (FH) Freier Architekt   |   Breitestraße 21  |  78234 Engen  |  Telefon: 07733 5408