Architekturbüro
Diese Webseite verwendet Cookies. Durch die Nutzung der Webseite stimmen Sie der Verwendung von Cookies zu.

Wohnanlagen / Geschäftshäuser

5 Familien Haus in Steißlingen

5 Familien Wohnhaus in Steißlingen
5 Familien Wohnhaus in Steißlingen
 

Pläne und Ansichten

Grundriss EG
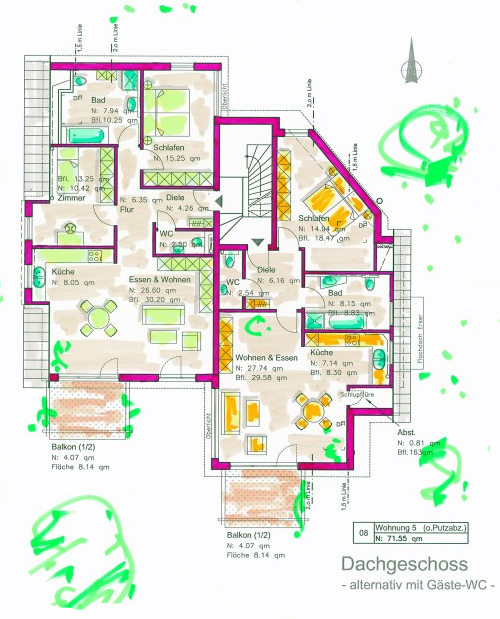
Grundriss Dachgeschoss
Grundriss Obergeschoss
Querschnitt
 
 
 
 

Dieter Heller - Dipl. Ing. (FH) Freier Architekt   |   Breitestraße 21  |  78234 Engen  |  Telefon: 07733 5408