Architekturbüro
Diese Webseite verwendet Cookies. Durch die Nutzung der Webseite stimmen Sie der Verwendung von Cookies zu.

Wohnanlagen / Geschäftshäuser

Wohnanlage in Moos

4 Familien Wohnhaus in Moos

4 Wohnungen in Moos

In der Ortsmitte von Moos wurde ein Wohnhaus mit 4 Wohnungen erstellt. In die dörfliche Ortstruktur von Kirche und historischen Gebäude wurde das Wohnhaus harmonisch eingepasst. Ortstypische Wiederkehren und Gaupen wurden stimmig aufgenommen um die Wohnräume mit Licht zu durchfluten.

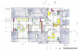
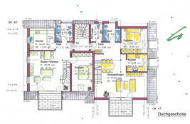
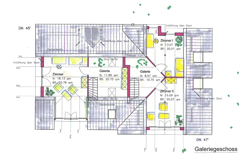
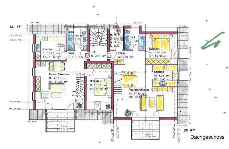
Im Obergeschoss und Dachgeschoss sind unterschiedlich große Wohnungen eingeplant worden. Galerien mit Luftraum lassen Platz für Freiheiten und flexible individuelle Nutzung. Grosse Balkone nach Süden und Westen   laden ein zum Verweilen. Hochwertige Baumaterialen und Dämmstandards setzen Maßstäbe. Eine moderne Heiztechnik in Kombination mit Solaren Einträgen ermöglicht geringen Energieverbrauch. Gesundes Wohnen steigert die Wohnqualität und  das Wohlbefinden.

4 Familien Wohnhaus in Moos
4 Familien Wohnhaus in Moos
4 Familien Wohnhaus in Moos
 

Pläne und Ansichten

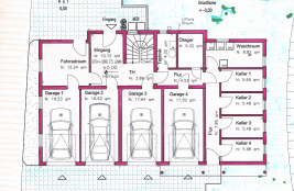
Grundriss EG / Parkdeck
Grundriss Galerie
Grundriss Obergeschoss
Grundriss Dachgeschoss
 
 
 

Dieter Heller - Dipl. Ing. (FH) Freier Architekt   |   Breitestraße 21  |  78234 Engen  |  Telefon: 07733 5408