Planung Service
Diese Webseite verwendet Cookies. Durch die Nutzung der Webseite stimmen Sie der Verwendung von Cookies zu.

Sanierung / Umbau

Umbau aus Bestand zu 3 Wohnungen in Engen
Vertrieb durch Ritzi und Partner GmbH, Singen

Umbau zu 3 Wohnungen in Engen
Grundriss Erdgeschoss
Grundriss Penthouse
 
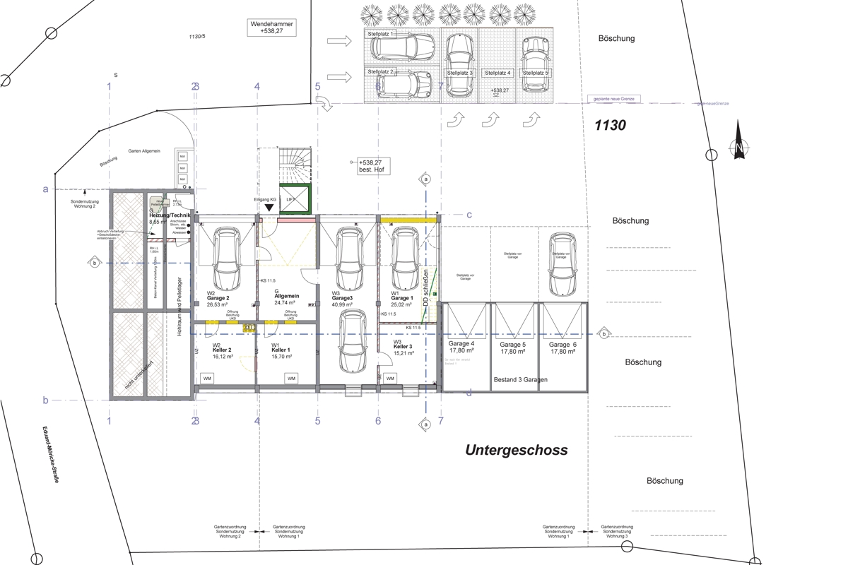
Grundriss Untergeschoss
Nordansicht
Westansicht
 
Südansicht
Ostansicht
 

Weitere Infos über dieses Projekt natürlich bei uns!

 
 

Dieter Heller - Dipl. Ing. (FH) Freier Architekt   |   Breitestraße 21  |  78234 Engen  |  Telefon: 07733 5408