Planung Service
Diese Webseite verwendet Cookies. Durch die Nutzung der Webseite stimmen Sie der Verwendung von Cookies zu.

Öffentliches Bauen

Turn- und Mehrzweckhalle in Liptingen

Turn- und Mehrzweckhalle in Liptingen
Turn- und Mehrzweckhalle in Liptingen
 
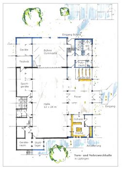
Grundriss der Halle

Umbau der Turnhalle zur Mehrzweckhalle

Gemeinsam mit der Schulleitung den Sportvereinen, Kulturellen Vereinigungen wie Theatergesellschaft, Musikverein etc. wurde ein Wunschprogramm aufgestellt.

Danach wurde ein Erweiterungskonzept erarbeitet das diesen Wünschen Rechnung trägt und in der Entwurfsplanung mit diesen auch abgestimmt wurde. Auf 2 Seiten wurde die Halle erweitert. Auf der Stirnseite wurde eine Bühne geschaffen als separaten Raum auch für kleine Einzelveranstaltungen mit einer Unterkellerung in der das Musikprobelokal untergebracht wurde. Auf der langen Hallenseite wurde ein großes Foyer geschaffen das ebenfalls separat von der Halle nutzbar ist. Über große Schiebewände kann die Halle seitlich mit dem Foyer vergrößert werden.

Eine große Multifunktionsküche die separat die Halle oder auch das abgetrennte Foyer bedienen kann. Neue Sanitäranlagen, Umkleideräume für Veranstaltungen runden das Raumprogramm ab. Zurückhaltend in der äußeren Gestaltung wurde die Erweiterung an die seit 25 Jahren alte Halle angepasst.

 
 
 

Dieter Heller - Dipl. Ing. (FH) Freier Architekt   |   Breitestraße 21  |  78234 Engen  |  Telefon: 07733 5408